平衡型注填套筒式補償器,工作中利用管道內流體靜壓力,對與之相連的兩側管道產生拉緊力,其拉力值,基本等于流體靜壓力乘以管道流通橫載面積。這樣對作用于管道拐彎或盲端處的固定支架上的流體靜壓產生的推力進行抵銷,從而使作用于該處固定支架上的推力大幅度降低,消除了普通型補償器在這方面的不足。簡化了該固定支架的設計與施工,大幅度地降低了其工程造價,尤其對高壓、高架空、結構空間有收到限制的場合_有益。這種補償結構使管道處于受拉狀態,提高了管道運行的平穩性。
平衡性補償器,依照工作原理可以分成兩種:平衡腔式補償器與擋板-旁通式補償器。
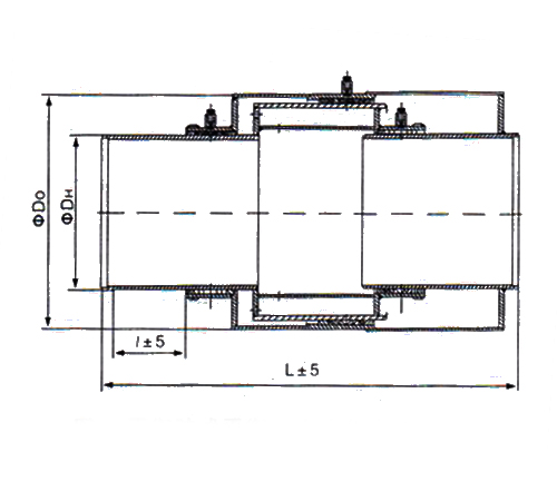
平衡腔式平衡型注填套筒式補償器
機構如下圖。
結構特點是:采用三個填料密封箱;準確的設計一個封閉流體環腔,利用流體靜壓力產生對兩側管道的拉緊力,抵消管道拐彎或盲端處固定支架上作用的流體推力。這種結構,由于流體直通式流懂,所以流體阻力損失很小,安裝長度短。
擋板-旁通式平衡型注填套筒式補償器
結構如下圖。
結構特點是:外套管串聯兩個填料密封箱,內套管后端加擋板,流體經內套管的孔道引到兩密封箱間隔腔,再經外套管間隔腔處孔道,引回到后部加擋板的主管道。這種補償器比平衡腔式補償器減少一個密封箱,結構簡單,但比平衡腔型補償器重量大,安裝尺寸長。